Financováno Evropskou unií
Next Generation EU
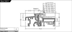
Dveřní těsnění TD 20/9 pro prahy Weser 86/32-TI, 74/32-TI, A51/32-TI
- Barva: Černá
Materiál: EPDM (EPDM = Ethylene Propylene Dien Monomer - syntetická kaučuková pryž)
Prodej po celých baleníh (1m) nebo po 0,1m (a násobcích).
Dveřní těsnění TD 20/9, černé GUTMANN
Výrobce: GUTMANN
Objednací číslo: GTHTD209
Záruka: 24 měsíců
Skladová dostupnost
| Cheb | více než 5 bm |
| Brno | více než 1 bm |
|
Kdy zboží dostanu?
×
Přepravní služby
zásilka do dvou pracovních dnů
turnusová doprava dle dohody Osobní odběr
sklad Cheb
více než 5 bm
sklad Brno více než 1 bm |
|